The Weisblat House

Designed by the American architect, Frank Lloyd Wright

The Acres, Galesburg, Michigan

A Timeless Masterpiece of Residential Architecture

The Weisblat House is a rare and thoughtfully composed example of Frank Lloyd Wright’s residential work—an intimate composition where architecture, light, and daily life are woven into a unified whole. Designed during a pivotal period in Wright’s career, the home reflects his commitment to organic architecture, with spaces that flow naturally and materials chosen to age with quiet grace.

Offered for only the second time in its history, the Weisblat House has been carefully stewarded, honoring Wright’s original intent while remaining a living, livable home.


Currently offered at $1,444,000

 

Designing a Usonian Ideal

“When we drove into The Acres at sundown and saw Wright’s architecture set into the landscape, I had tears in my eyes. It was immediately clear this place was something rare and deeply special.” —Current Steward

Rooted in Frank Lloyd Wright’s Usonian principles, the Weisblat House was designed to support modern life through clarity, restraint, and purpose. Living spaces are organized with intention, guided by Wright’s belief that architecture should be practical, human-scaled, and enduring rather than ornamental.

Built-in elements, considered sightlines, and a seamless connection between interior and landscape reinforce a philosophy where function and beauty exist as one.

— Chris Lim

Rooted in Frank Lloyd Wright’s Usonian principles, the Weisblat House was designed to support modern life through clarity, restraint, and purpose. Living spaces are organized with intention, guided by Wright’s belief that architecture should be practical, human-scaled, and enduring rather than ornamental. Built-in elements, considered sightlines, and a seamless connection between interior and landscape reinforce a philosophy where function and beauty exist as one. — Chris Lim
Show more
Gloria Poore, Current Owner

“We weren’t just buying a house—we were being entrusted with the care of something important.”

Show more
The Weisblat House

“The house was pure good design. It was spacious, comfortable, and already telling us how it wanted to be preserved.”

Show more

Architecture & Interior

The home’s low horizontal profile, deep rooflines, and thoughtful siting exemplify Wright’s conviction that architecture should belong to its landscape. Inside, the open-plan interior unfolds with ease—guided by original built-ins, measured ceiling heights, and framed views that draw the outdoors inward.
Original materials and architectural details remain intact, reinforcing the cohesion between form and function. The result is a home that feels both architecturally significant and deeply livable—designed not for display, but for life.
 

At a Glance

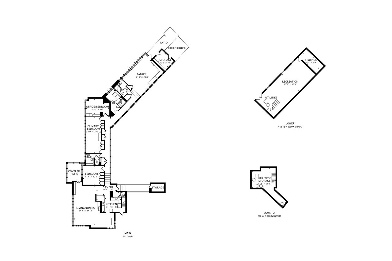
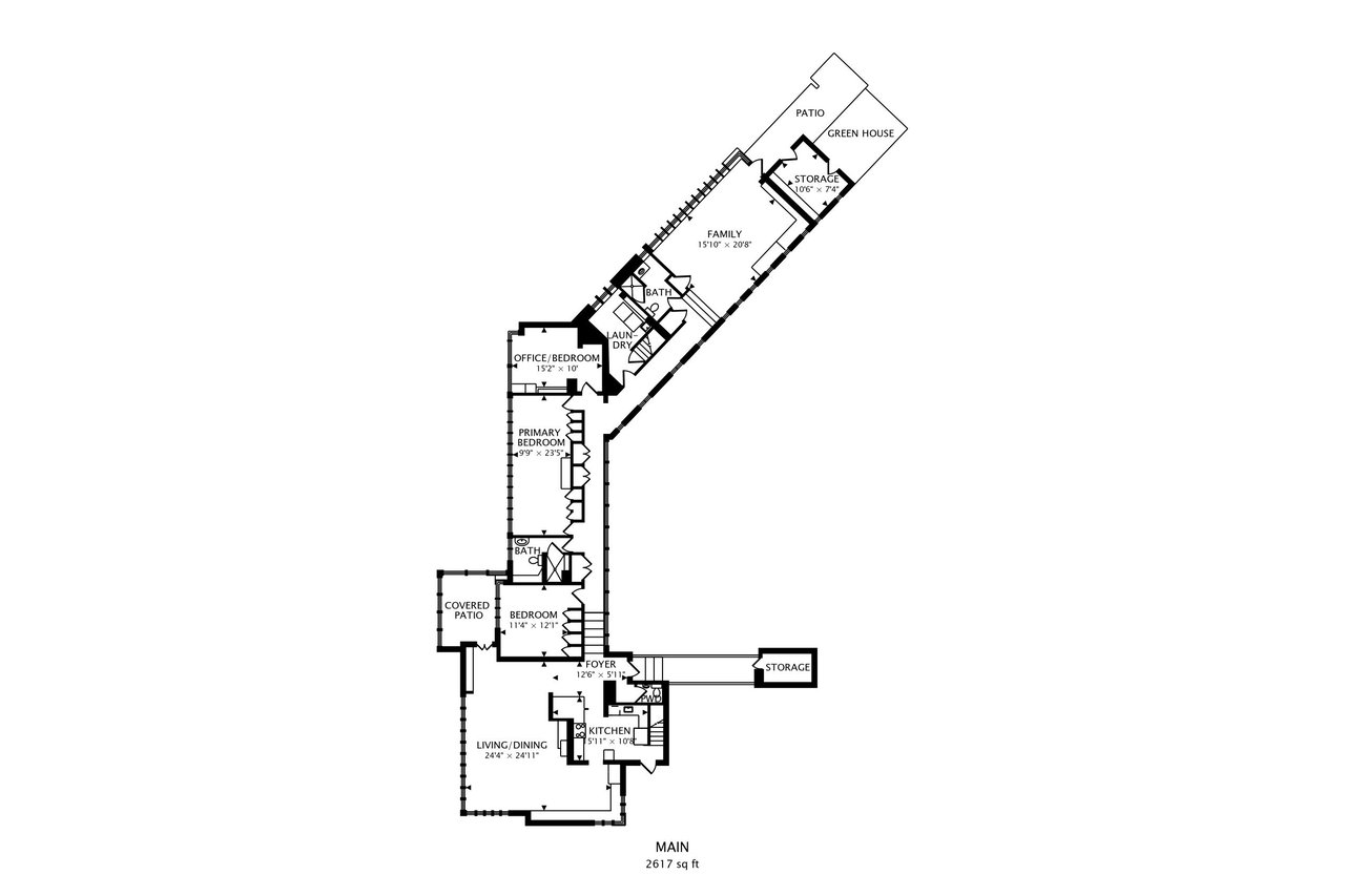
Designed in 1951, the Weisblat House is one of only four Frank Lloyd Wright–designed Usonian homes within The Acres, a 70-acre wooded enclave listed on the National Register of Historic Places.

Constructed of concrete block and Honduran mahogany, the home features Wright’s signature horizontal lines, ribbon windows, and walls of glass that draw natural light deep into the interior. The open living and dining areas are anchored by a working fireplace, complemented by three bedrooms and 2.5 baths, two distinct living spaces, a screened porch, and tranquil views into the surrounding woodland and pond. Thoughtful infrastructure updates, an enclosed lap pool, and a private one-acre setting—along with an adjacent additional acre—offer modern comfort within an exceptionally preserved architectural setting just a short drive from Chicago, Detroit, and Grand Rapids.

Current Stewards

“Our work wasn’t about changing the house. It was about strengthening it and protecting what was already there.”

Show more
The Weisblat House

“The value of The Acres is in what hasn’t been done over time—preserved exactly as Frank Lloyd Wright envisioned.”

Show more

The Acres

The Weisblat House is located within The Acres, one of Frank Lloyd Wright’s most complete and carefully preserved Usonian communities. Conceived as a holistic environment, The Acres reflects Wright’s belief that architecture and landscape should exist in quiet partnership.
Free of unrelated development and protected by long-standing covenants, the community remains remarkably intact—preserving Wright’s vision not only for individual homes, but for their collective relationship to the land. Living at The Acres is an act of stewardship, continuity, and respect for design.
Frank Lloyd Wright

Frank Lloyd Wright

The Greatest American Architect of all Time

Recognized by the American Institute of Architects as the greatest American architect of all time, Frank Lloyd Wright created some of the world’s most innovative spaces. He designed more than 1,100 architectural works, 532 of which were realized, and 380 of which remain standing today. Eight of his buildings have been designated UNESCO World Heritage sites, including New York’s Guggenheim Museum and his showcase house, Fallingwater, in western Pennsylvania.

— Frank Lloyd Wright

“Form follows function—that has been misunderstood. Form and function should be one, joined in a spiritual union.”

Show more
— Frank Lloyd Wright

“A house should be of the hill, belonging to it, not on it.”

Show more

Blending Art and Property

Global Reach. Architectural Stewardship.

The Weisblat House represents a rare intersection of architectural significance and thoughtful presentation. Positioned through Christie’s global network and local expertise, the property is offered to discerning buyers who recognize historic architecture not simply as property—but as cultural legacy.

The Weisblat House at the Acres

11185 Hawthorne Dr, MI — $1,444,000

name

-

The Weisblat House is exclusively represented by @properties | Christie’s International Real Estate.

main secondary

Victoria Krause Schutte

Broker-IL and Salesperson-MI
708.214.8108

Victoria brings broad and deep life experiences that she will put to work for you as you buy or sell your home and plan for your future.